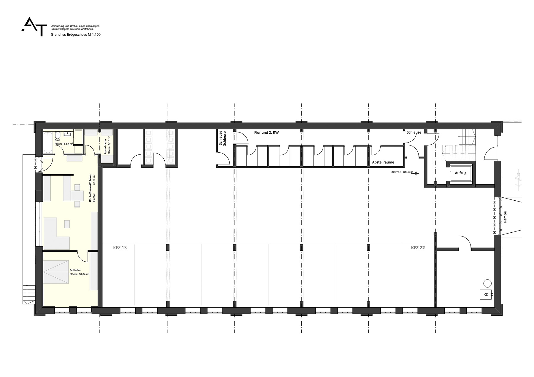
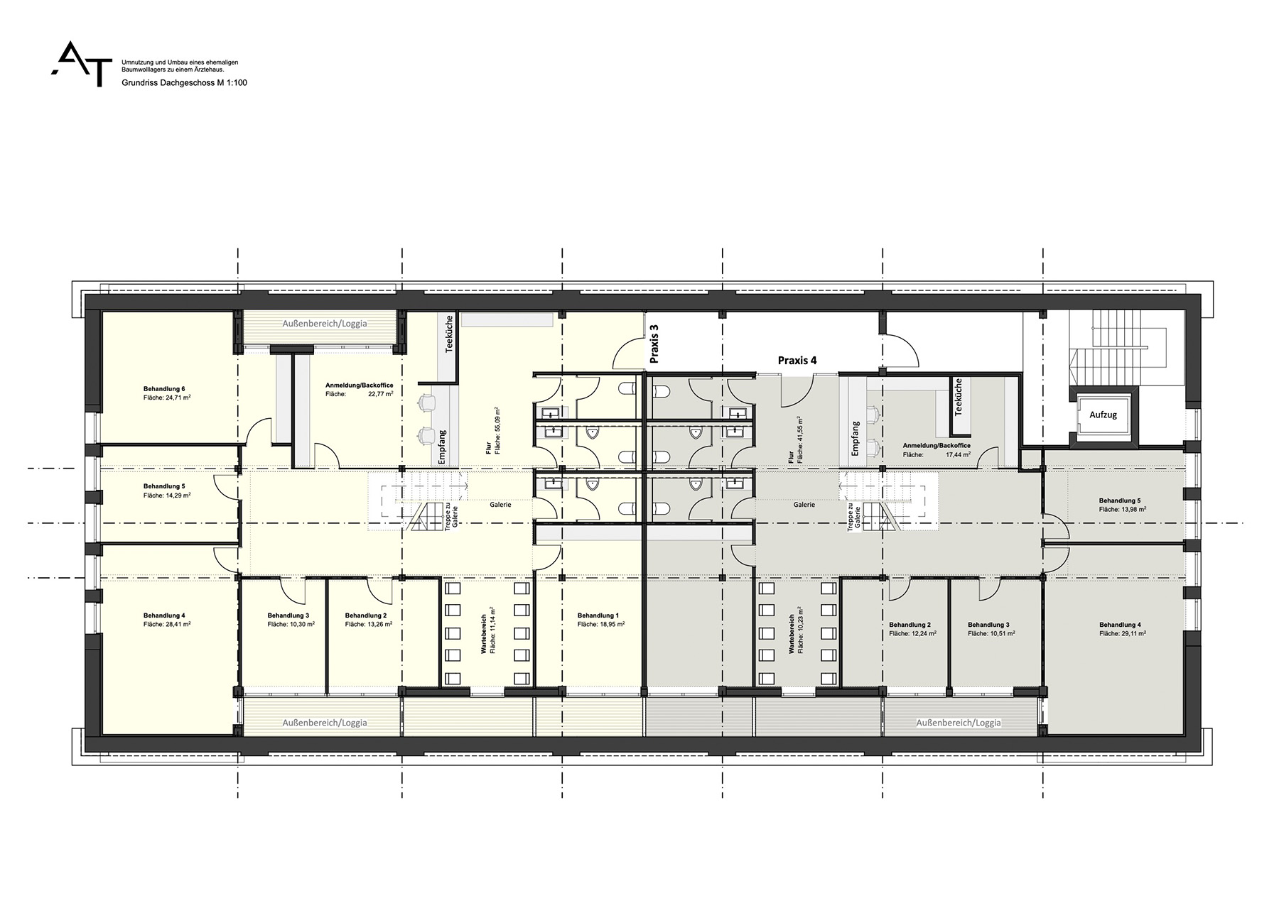
Das ehemalige Baumwolllager wurde 1904 für die Alte Spinnerei in Forchheim errichtet und wird im Zuge einer Umnutzung und Sanierung seiner neuen Bestimmung zugeführt. Das Backsteingebäude mit den geschwungenen Giebeln und dem markanten Glasdach wird umfassend saniert und neu strukturiert. Im hallenartigen Innenraum werden zwei Stahlbetondecken eingebaut. Im Erdgeschoss entstehen eine Mittelgarage und eine Wohnung. Im Ober- und Dachgeschoss sind jeweils zwei Arztpraxen vorgesehen.
Nutzung: Ärztehaus
Standort: Forchheim
Nutzfläche: 675m2
