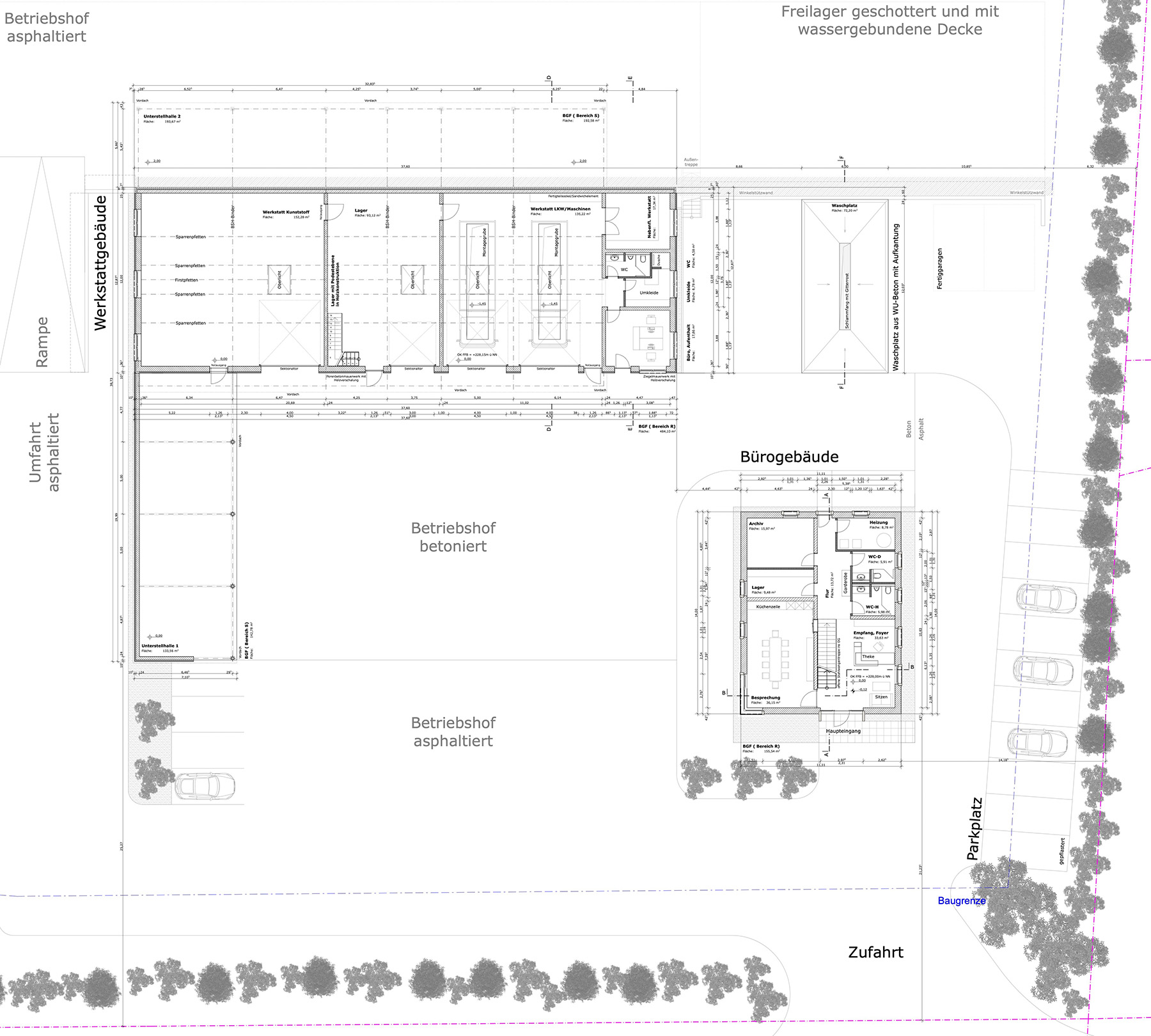
Das Vorhaben beinhaltet den Neubau eines Betriebsgeländes mit Büro-, Werkstattgebäude und Außenlagerfläche.
Im Bürogebäude befindet sich der Verwaltungsbereich mit Empfang, Besprechung und individuellen Büroräumen auf einer Bruttofläche von ca. 280m2. Das nebenstehende Werkstattgebäude beherbergt auf einer Fläche von ca. 600m2 unterschiedliche Werkstatt- und Lagerbereich, inkl. Sozialräumen.
Nutzung: Betriebsgebäude mit Verwaltung und Werkstatt
Standort: Ebelsbach, Landkreis Hassberge
Gewerbliche Nutzfläche: 950m2
