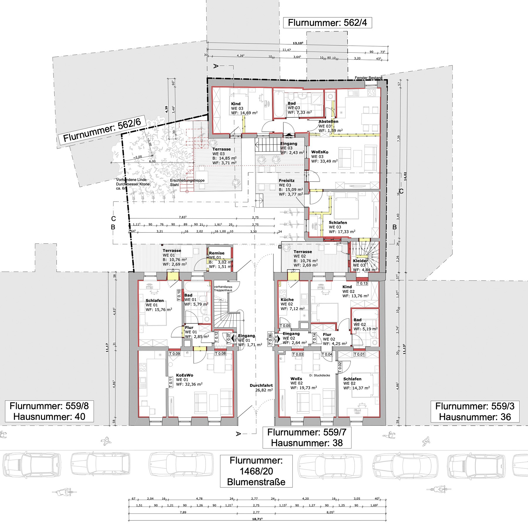
Beim Gebäude Blumenstraße 38 in 90762 Fürth handelt es sich ursprünglich gem. Denkmalliste um einen dreigeschossigen traufseitigen Satteldachbau mit Sandsteinfassade, Stichbogenfenster im Erdgeschoss und Sohlbankgesims mit Ornament, spätklassizistisch, von Paulus Müller, 1872/73. Das gesamte Anwesen besteht aus Vordergebäude und später errichtetem Rückgebäude. Rückseitig am Hauptgebäude wurde zu späterer Zeit mittig ein holzverschalter Abortanbau (in Folge Toilettenanbau genannt) erstellt.
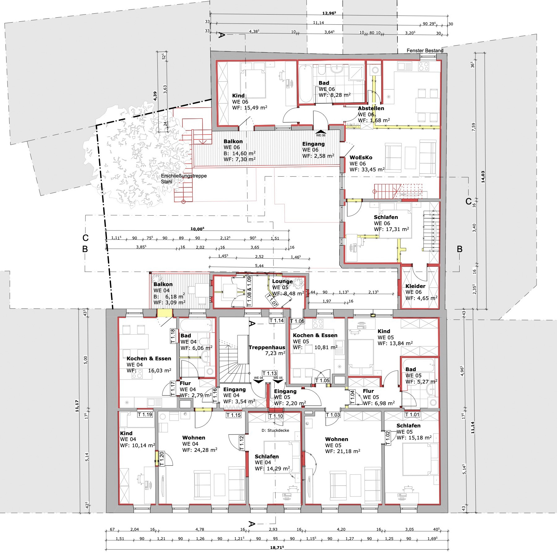
Das Gebäude ist im Erdgeschoss mittig durch eine den Hinterhof erschließende Durchfahrt geteilt. Das Rückgebäude wurde ursprünglich als Schreinerei genutzt. Es war gefordert das Gebäudeensemble Blumenstraße 38 denkmalgerecht und energetisch zu sanieren. Im Einzelnen wurden im Innenbereich folgende Maßnahmen geplant und durchgeführt: Einbau einer neuen Heizungsanlage; Einbau neuer haustechnischer Anlagen, Leitungen und Gegenstände (Heizungs-, Lüftungs- und Sanitärinstallation, Elektroinstallation) unter Ausnutzung möglichst vorhandener Durchführungen; energetische Sanierung der Gebäudehülle durch Dämmung der Dachflächen, Innendämmung der Außenwände, Einbau neuer denkmalgerechter Holzfenster und Einbau einer Dämmung auf anstehenden Bodenplatten bzw. Kellerdecken; Rückbau vorhandener neuzeitlicher Einbauten, wie Gipskartonverkleidungen, Porenbetonwänden und ähnlichem; Geringfügige Grundrissänderungen zur Optimierung der Grundrissstrukturen; Aufarbeiten und denkmalgerechte Sanierung vorhandener bauzeitlicher Bauteile wie Türen, Stuckdecken, Putze. Die Hüllfläche wurden folgendermaßen saniert: Die Sandsteinfassaden befanden sich in einem recht guten, nahezu originalen, allerdings sehr stark verschmutzten Zustand; diese wurden vorsichtig gereinigt und Fehlstellen mit Sandsteinersatzmaterial ausgebessert; es wurden neue Holzfenster/Galgenfenster als historische „Denkmalfenster“ mit entsprechenden Profilierungen und Holzwetterschenkeln eingebaut werden.
Auf der Rückseite des Hauptgebäudes wurden vorhandene Fensteröffnungen durch den Rückbau der vorhandenen Brüstungen als Terrassentüröffnungen erstellt. Diese dienen der Erschließung neu angebauter, rückseitiger Balkone. Es wurden auf allen Dächern die Dachdeckung mit Naturschieferdeckung (Spitzwinkeldeckung) ausgeführt; die zu flachen Bereiche für eine Schieferdeckung wurden mit einer 2-lagigen Bitumendeckung ausgeführt (auf den Gauben). Sämtliche Blecharbeiten wurden in Kupfer ausgeführt. Der hintere, zu späterer Zeit entstandene ehemalige Toilettenanbau an das Hauptgebäude wurde auf Erhaltungsfähigkeit geprüft und statisch ertüchtigt. Die senkrechte Boden-Leisten-Schalung wurde abgenommen und teilweise wiederverwendet; neue Verkleidungsbretter und -leisten wurden nach historischem Vorbild ergänzt.
Die Farbegestaltung erfolgte nach Bemusterung und Absprache mit der USD-Behörde. Im Ganzen entstanden 10 Wohneinheiten in Vorder- und Rückgebäude mir einer Gesamtwohnfläche von ca. 820 m². Jede der Wohneinheiten ist mit einem Balkon, einer Terrasse oder einer Lounge zum Hof hin orientieret ausgestattet.
