Revitalisierung, Sanierung und Lückenschluss Boucherie-Ensemle in der Altstadt von Forchheim.
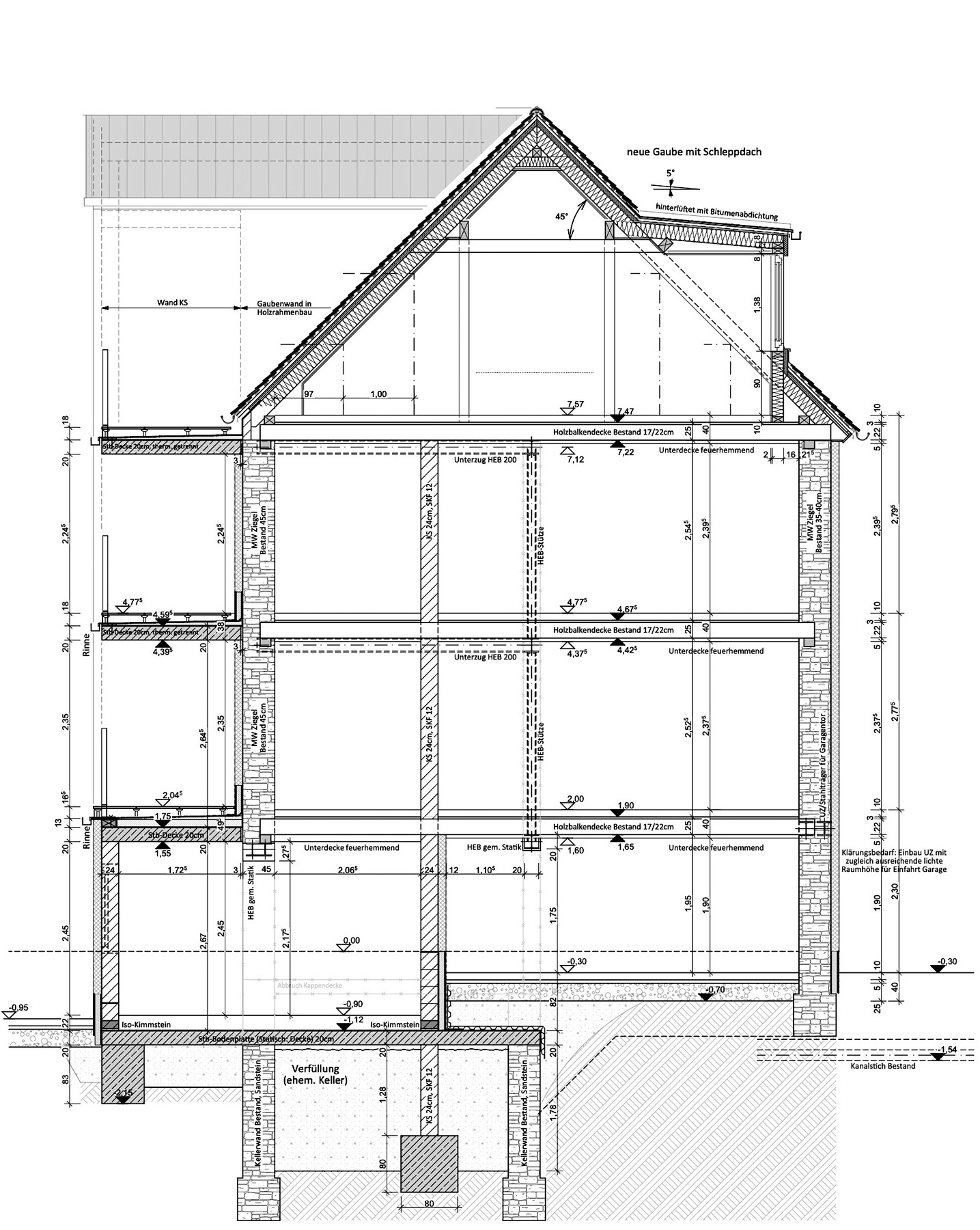
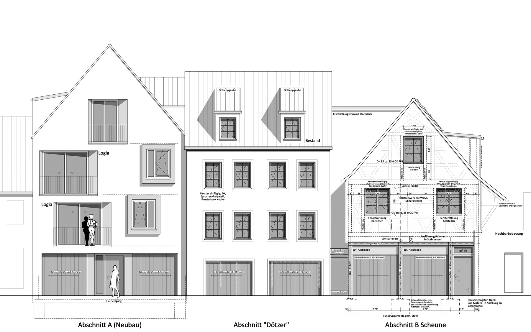
Der Gebäudekomplex Hauptstraße 61/63, Burgerhofstraße 2/4/6 in Forchheim, die ehemalige Metzgerei Belzer besteht im Ganzen aus 8 bestehenden Einzelgebäuden, darunter die der Hauptstraße zugewandten Vordergebäude und Einzeldenkmäler Hauptstraße 61, D-4-74-126-120 und Hauptstraße 63, D-4-74-126-123, jeweils dazugehörigen Rückgebäuden, einem Werkstattanbau einem Wohnhaus Burgerhofstraße 2, einer Scheune Burgerhofstraße 4, einem zweigeschossigem Lagergebäude und der Baulücke Burgerhofstraße 6. Das Gebäudeensemble ist sowohl Bestandteil des Ensembles Altstadt Forchheim, E-4-74-126-8, als auch des Bodendenkmales Altstadt Forchheim, D-4-6232-0323. Der Gebäudekomplex wird denkmalgerecht saniert und umgebaut. Die Baulücke Burgerhofstraße 6 wird geschlossen. In Summe entstehen hier 19 Wohnungen mit jeweils den rückseitigen Hofflächen bzw. Freiflächen zugewandten Terrassen, Dachterrassen oder Balkonen. Erdgeschossig werden zur Hauptstraße orientiert zwei Ladenflächen, im rückwärtigen Bereich eine Büroeinheit geschaffen.
Nutzung: Wohn- und Geschäftsgebäude
Standort: Forchheim
Wohn- und gewerbliche Nutzfläche: ca. 2.000m2
