Free cookie consent management tool by TermsFeed Policy Generator
Hindenburgstraße Coburg

Hindenburgstraße Coburg

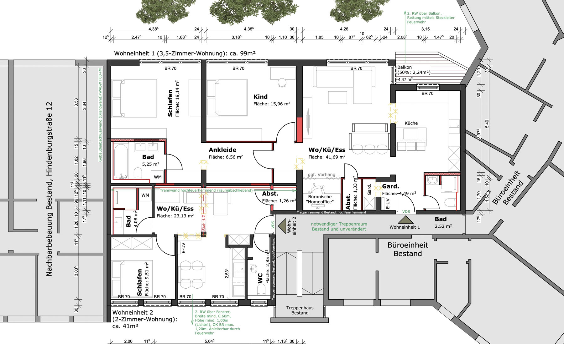
Einbau von zwei Wohnungen anstelle einer Büroeinheit

 

Nutzung: Wohnen

Standort: Coburg

Wohnfläche: 140m2

Anzahl Wohneinheiten: 2