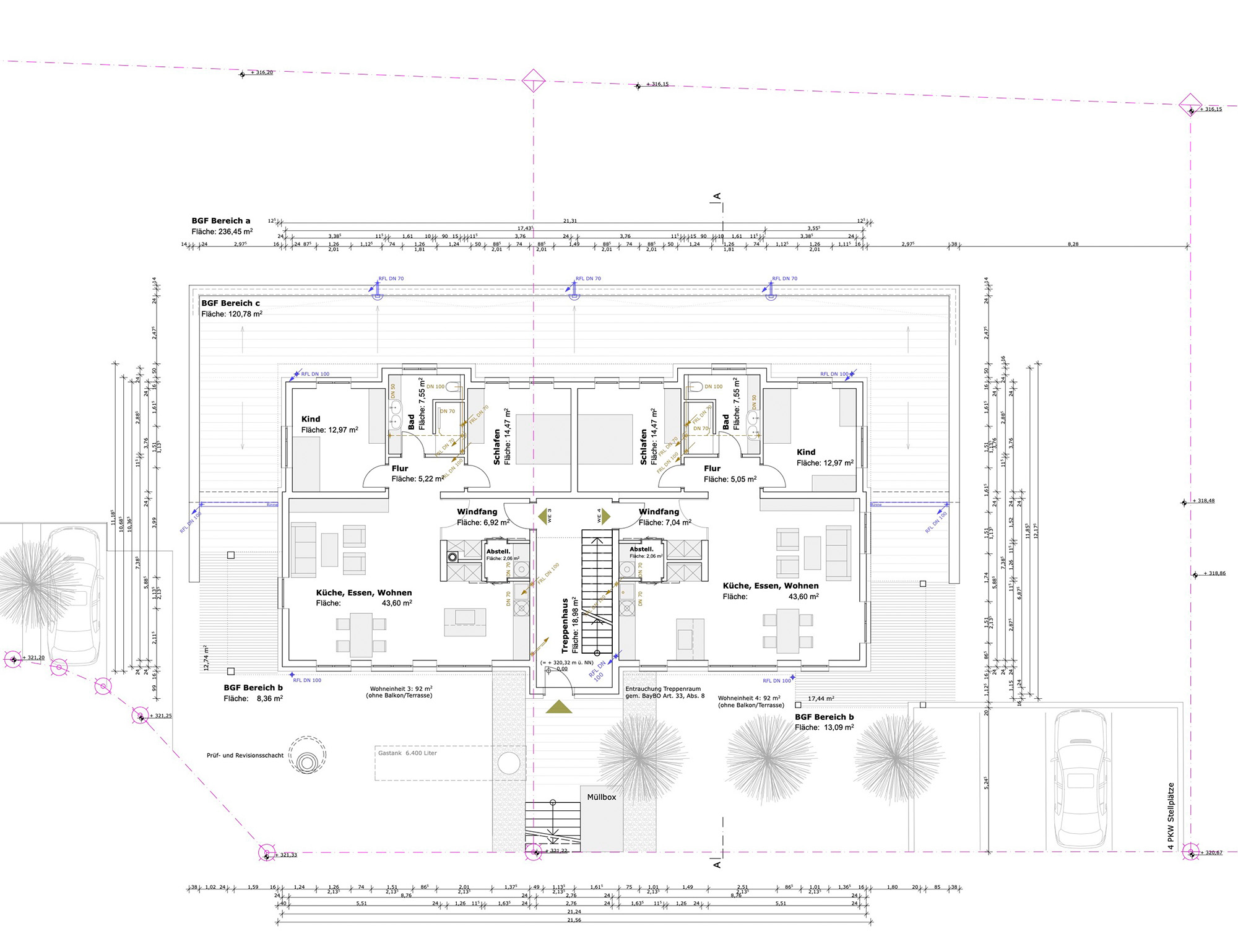
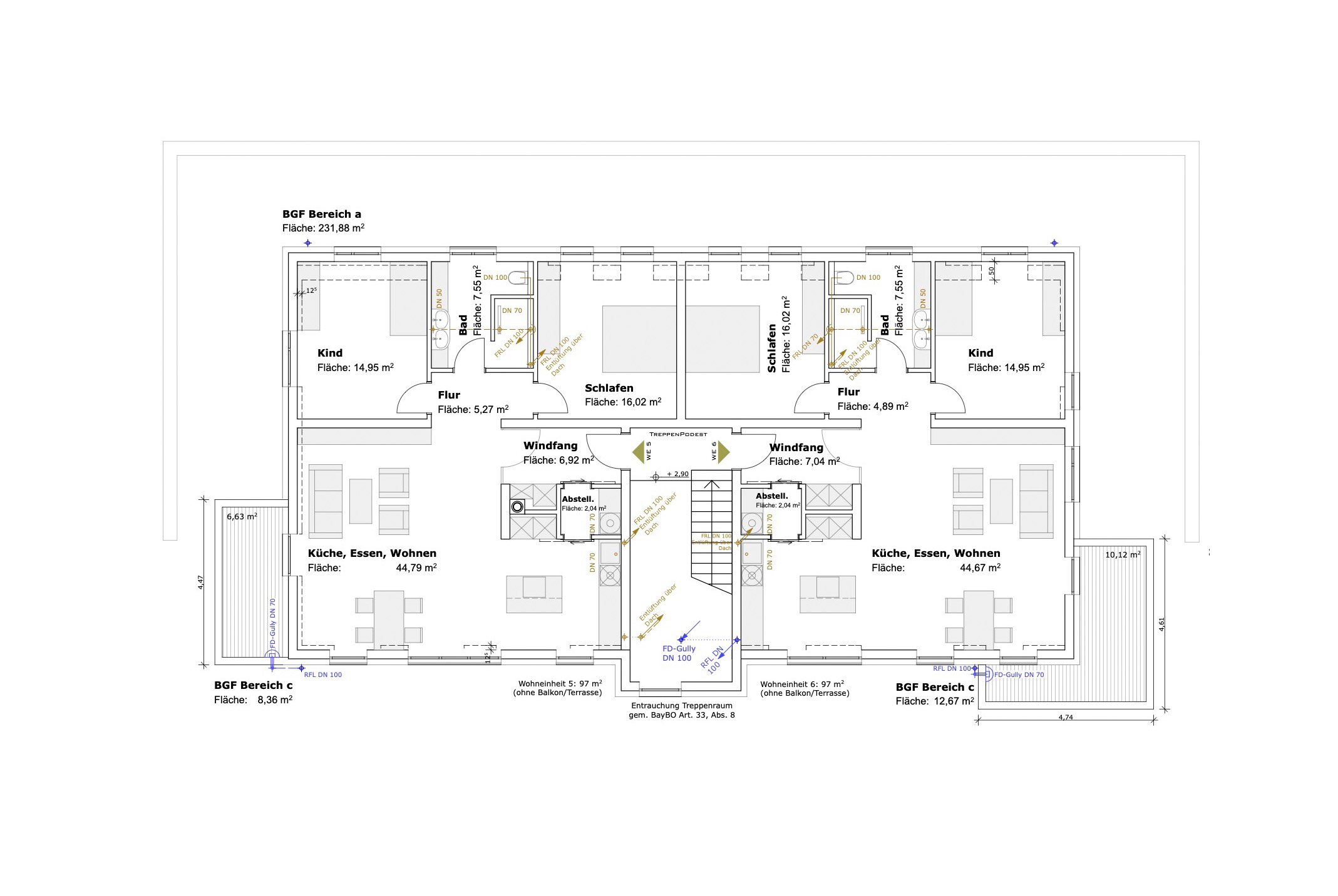
Neubau eines Mehrfamilienwohnhaus in Massivbauweise mit 6 Wohneinheiten. Die nicht unerhebliche Hangsituation ermöglichte die Nutzung des Untergeschosses als vollwertiges nutzbares Geschoss mit zwei Wohnungen. Die Wohnungsgrundrisse wurden mit offenen Küchen-, Essen- und Wohnbereichen gestaltet.
Nutzung: Mehrfamilienwohnhaus
Wohnfläche: 582m2
Standort: Eltmann, Landkreis Hassberge
