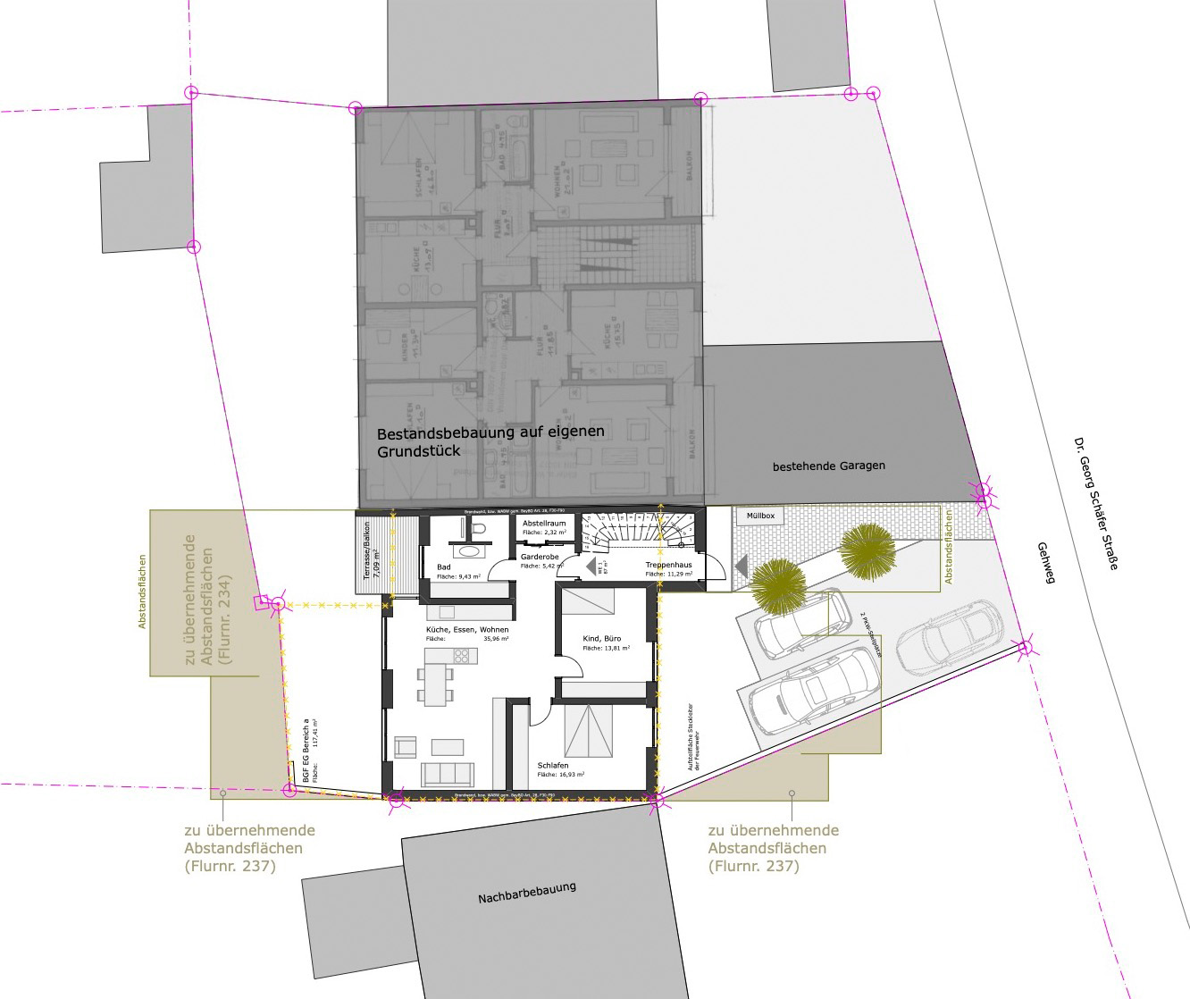
Entwurfsplanung über den Neubau eines Mehrfamilienwohnhaus mit 3 Wohneinheiten.
Das Vorhaben wurde anstelle einer ehemaligen Scheune geplant und bildet den Lückenschluss einer geschlossenen Reihenbebauung.
Nutzung: Mehrfamilienwohnhaus
Wohnfläche: 263m2
Standort: Eltmann, Landkreis Hassberge
