Reihenhäuser in Holzrahmenbauweise.
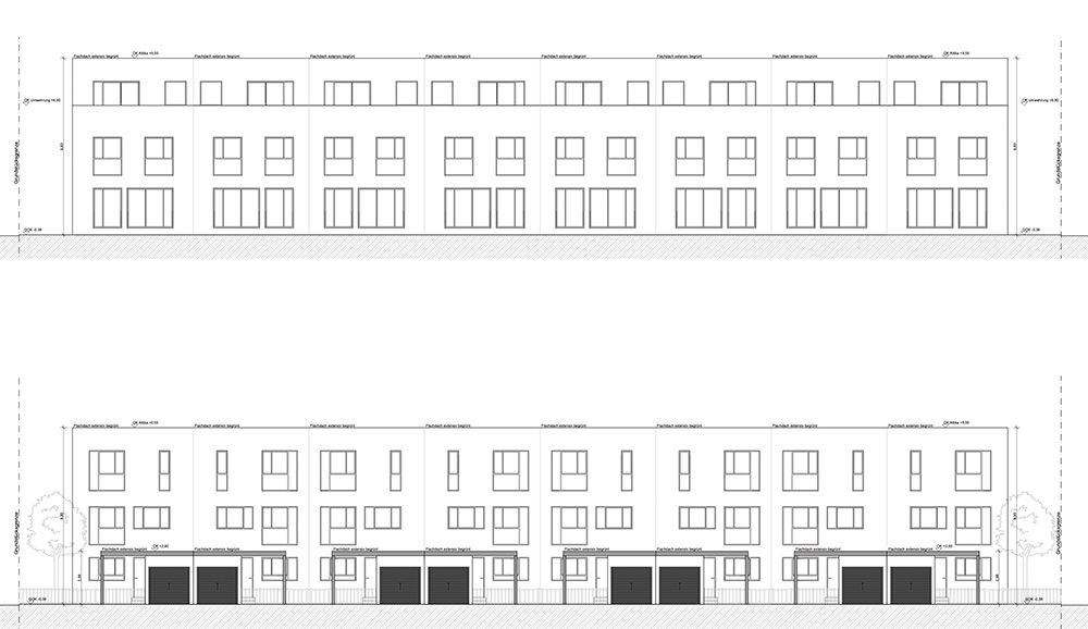
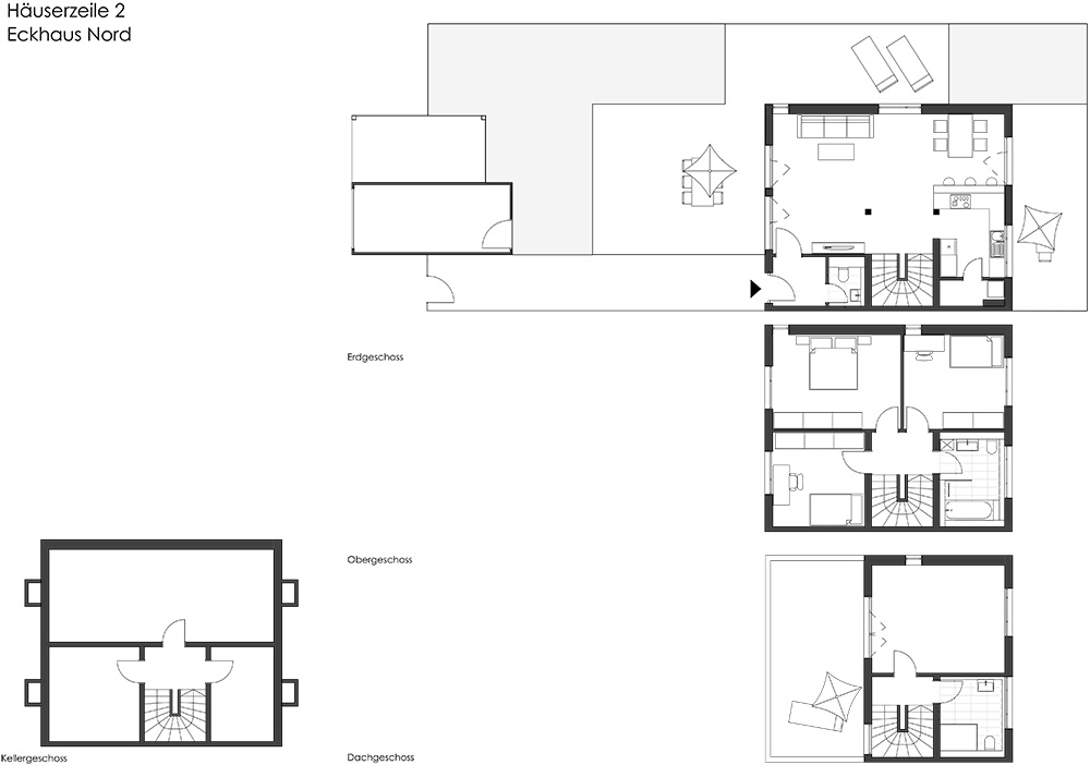
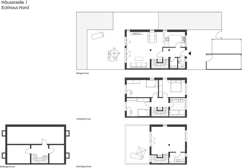
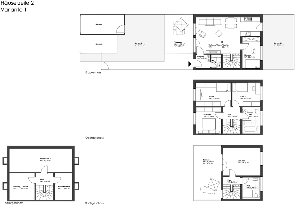
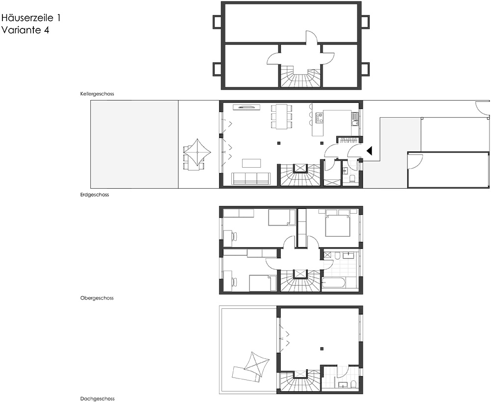
Im 3. Bauabschnitt des Wohngebietes Herzo Base, dem ehemaligen amerikanischen Kasernengelände nordöstlich von Herzogenaurach wurden Bereich des Grundstückspakets 27 16 Reihenhäuser in zwei Hauszeilen in Übereinstimmung mit dem Bebauungsplan Nr. 55 – 2./3. BA entworfen und gebaut. Die westorientieren Reihenhäuser sind jeweils vollunterkellert ab der Decke über dem Kellergeschoss in Holzrahmenbauweise (Energieeffizienzhaus-Standard 40) errichtet und weisen eine Wohnfläche von jeweils ca. 160 m² auf. Es handelt sich um dreigeschossige Flachdachgebäudezeilen mit jeweils zwei Vollgeschossen und einem zurückgesetzten Dachgeschoss mit Dachterrasse. Eine mittige Privatstraße verbindet und erschließt die jeweiligen Häuserzeilen.
Im 3. Bauabschnitt des Wohngebietes Herzo Base, dem ehemaligen amerikanischen Kasernengelände nordöstlich von Herzogenaurach wurden Bereich des Grundstückspakets 27 16 Reihenhäuser in zwei Hauszeilen in Übereinstimmung mit dem Bebauungsplan Nr. 55 – 2./3. BA entworfen und gebaut. Die westorientieren Reihenhäuser sind jeweils vollunterkellert ab der Decke über dem Kellergeschoss in Holzrahmenbauweise (Energieeffizienzhaus-Standard 40) errichtet und weisen eine Wohnfläche von jeweils ca. 160 m² auf. Es handelt sich um dreigeschossige Flachdachgebäudezeilen mit jeweils zwei Vollgeschossen und einem zurückgesetzten Dachgeschoss mit Dachterrasse. Eine mittige Privatstraße verbindet und erschließt die jeweiligen Häuserzeilen.
