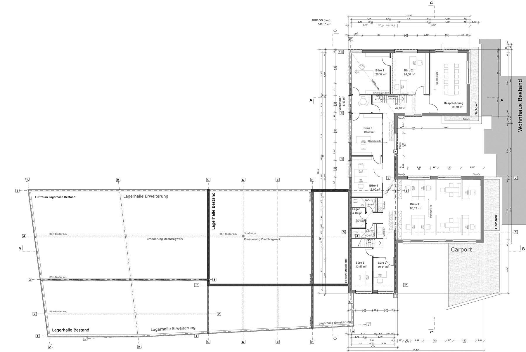
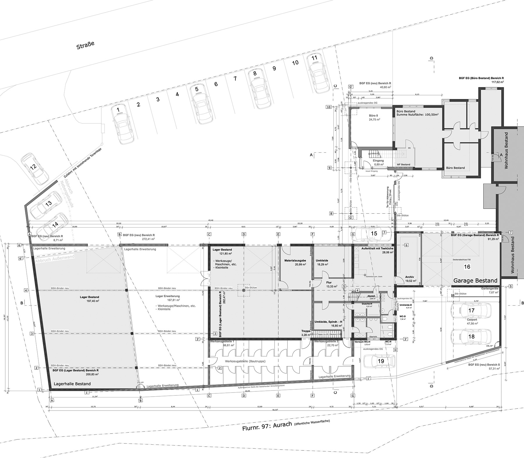
Betriebserweiterung durch Aufstockung und Erweiterung der Verwaltung, inklusive Umbau und Erweiterung der Lagerhalle.
Bestehende Gebäudeteile wurden weitestgehend bei der Entwurfsplanung berücksichtigt und integriert, so dass im Resultat ein gesamteinheitliches neues Erscheinungsbild entstand. Alle Baumaßnahmen wurden größtenteils durch eine nachhaltige Holzbauweise umgesetzt.
Nutzung: Betriebsgebäude mit Verwaltung und Lager
Standort: Oberaurach, Landkreis Hassberge
Gewerbliche Nutzfläche: 1.220m2
