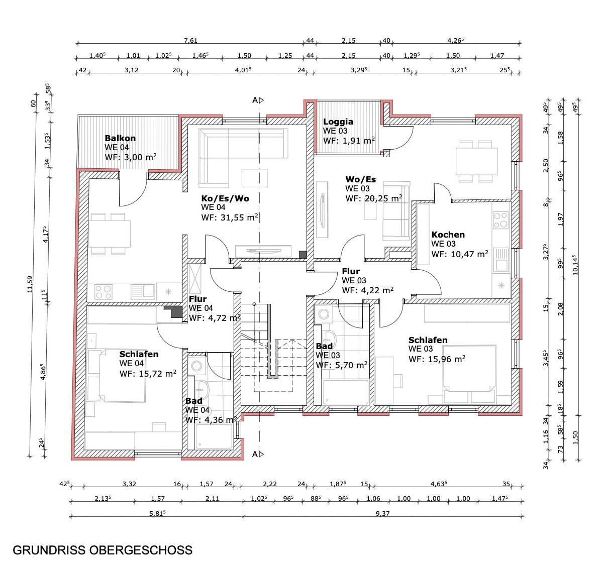
Das Wohnhaus Wiesentstraße 16 in Forchheim, ein zweigeschossiger Satteldachbau aus den 50er Jahren des 20. Jahrhunderts orientiert sich zur Südwestseite zum Flüsschen Wiesent hin und überbaut diese um ca. 2,80 m. Zum Nordwesten hin grenzt das Anwesen an eine öffentliche Brücke, welche die Wiesent quert. In dem Gebäude wurden im Zuge einer Kernsanierung eine straßenseitige Gewerbeeinheit (Ladeneinheit) und im Ganzen 5 Wohnungen mit einer Gesamtwohnfläche bzw. Gewerbefläche von ca. 320 m² generiert. Die zur Wiesent hin orientierten Wohnungen sind jeweils mit Balkonen bzw. ausgestattet.
