Neubau einer Wohnanlage mit Tiefgarage und einer Gewerbeeinheit
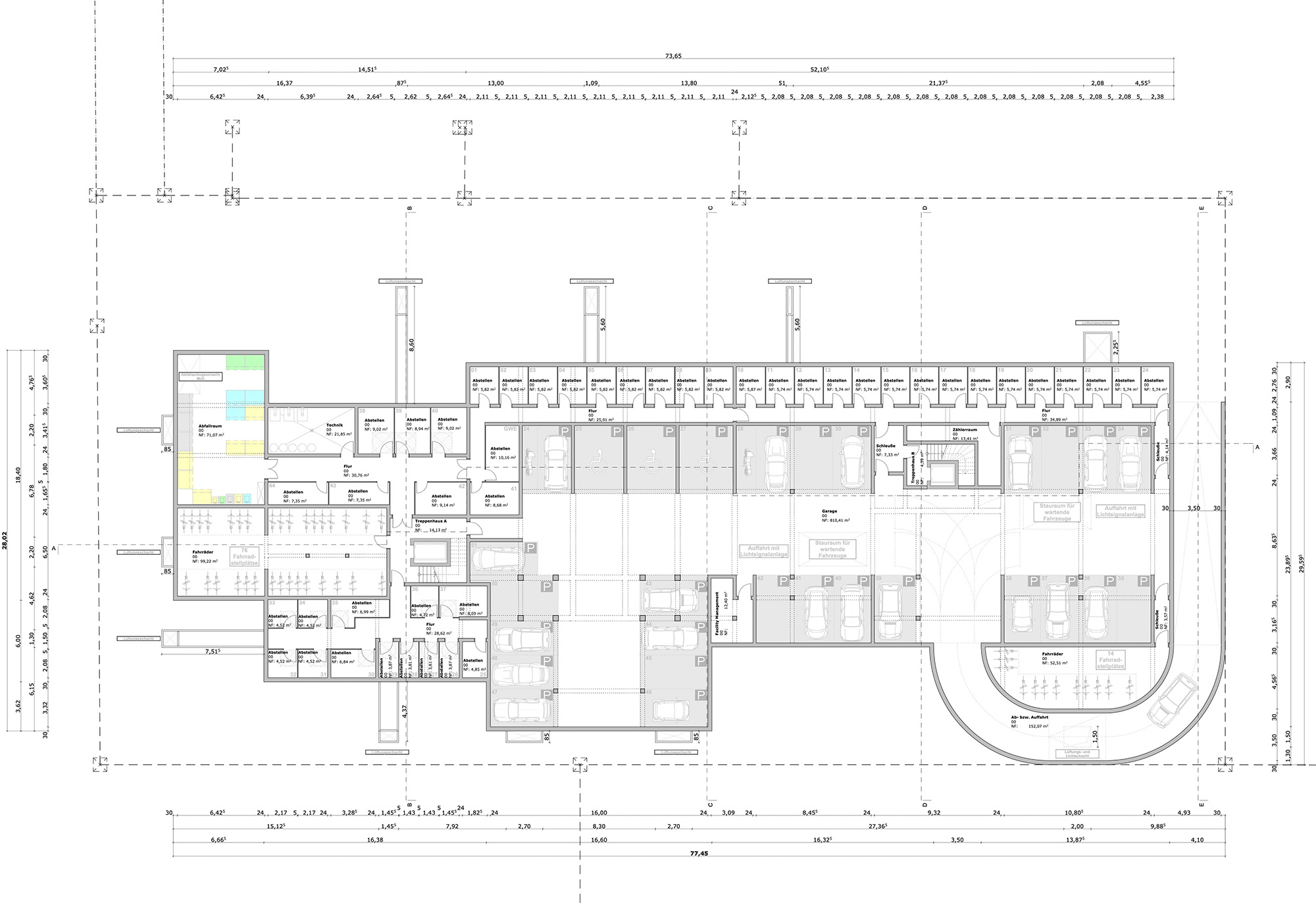
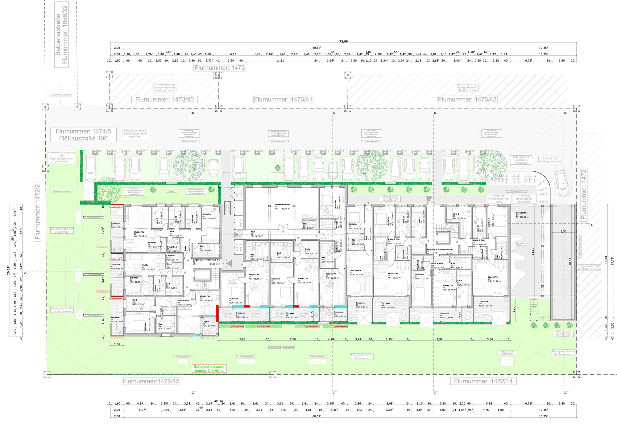
Das in der Fürther Südstadt, nahe dem Südstadtpark in zweiter Reihe, in einem Mischgebiet gelegene Grundstück Flößaustraße 100 war das letzte in diesem Bereich vorhandene freie Grundstück und war lediglich mit einer eingeschossigen Lagerhalle bebaut. In direkter Nachbarschaft sind einerseits bereits bestehende Wohngebäude vorhanden, andererseits Gewerbebetriebe. Es wurde ein Gebäude mit fünf Vollgeschossen und einem Parkdeck im Untergeschoss entworfen. Im Ganzen konnten 44 Wohnungen und 1 Gewerbeeinheit mit 57 m² Wohnfläche/Nutzfläche bis 160 m² Wohnfläche/Nutzfläche verwirklicht werden. Die gesamt Wohnfläche bzw. gewerbliche Nutzfläche umfasst zusammen ca. 4000 m². Im Parkdeck sind 28 Kfz-Stellplätze vorgesehen, erdgeschossig im Außenbereich 25 Kfz-Stellplätze.
