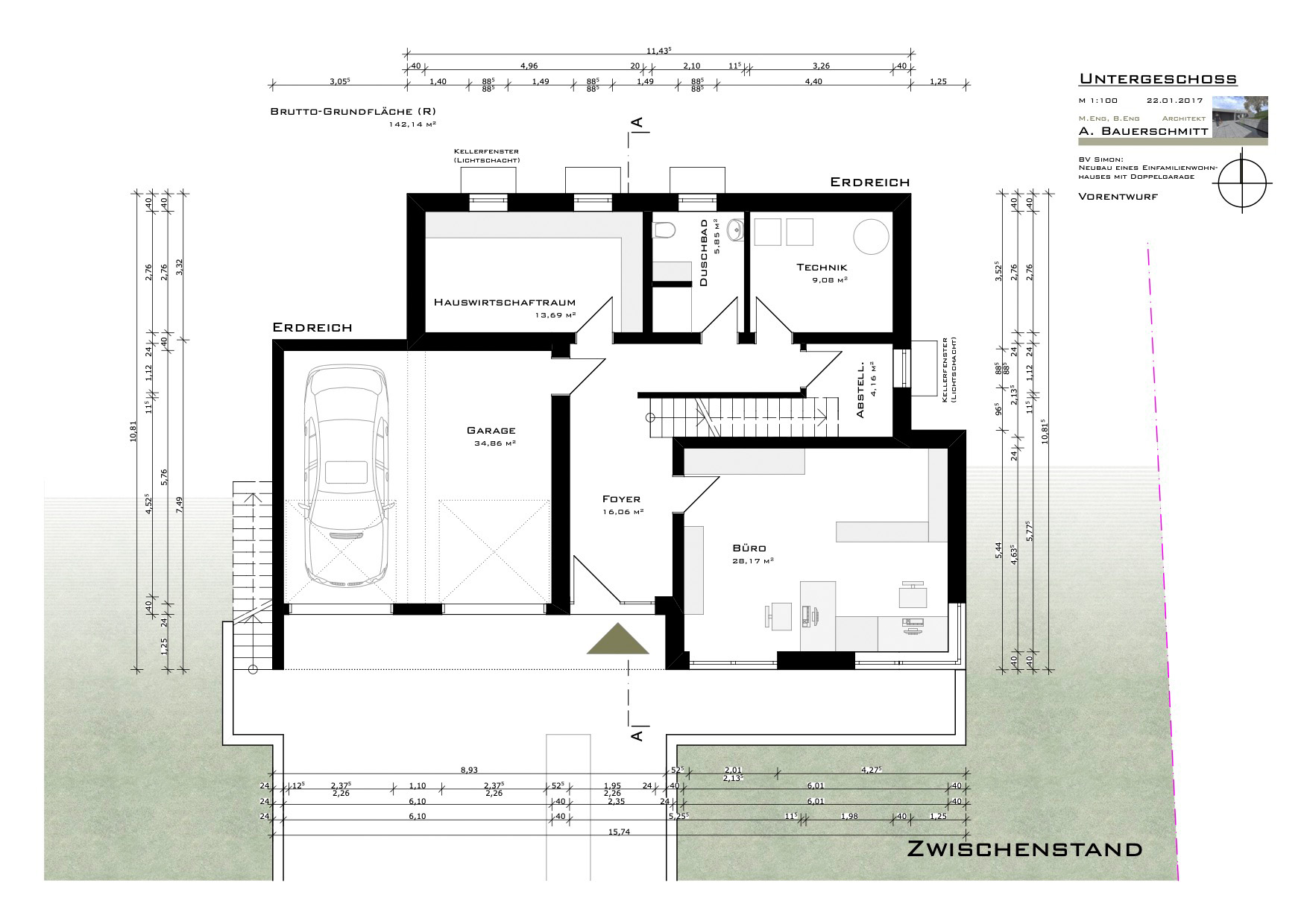
Neubau Einfamilienwohnhaus mit Doppelgarage.
Das gesamte Untergeschoss im Hang wurde in Stahlbeton erstellt. Die Erstellung von Erd- und Obergeschoss erfolgte in Holzrahmenbauweise.
Nutzung: Einfamilienwohnhaus
Wohnfläche: 219m2
Standort: Amlingstadt, Landkreis Bamberg
Quellenangabe der Publikation:
Sonderheft 2022/2023 mein schönes zuhause***, Sonderheft smarte öko-häuser, biz Verlag GmbH
Bildnachweis „Zuhause des Monats“: Wolf System GmbH, am Stadtwald 20, 94486 Osterhofen
