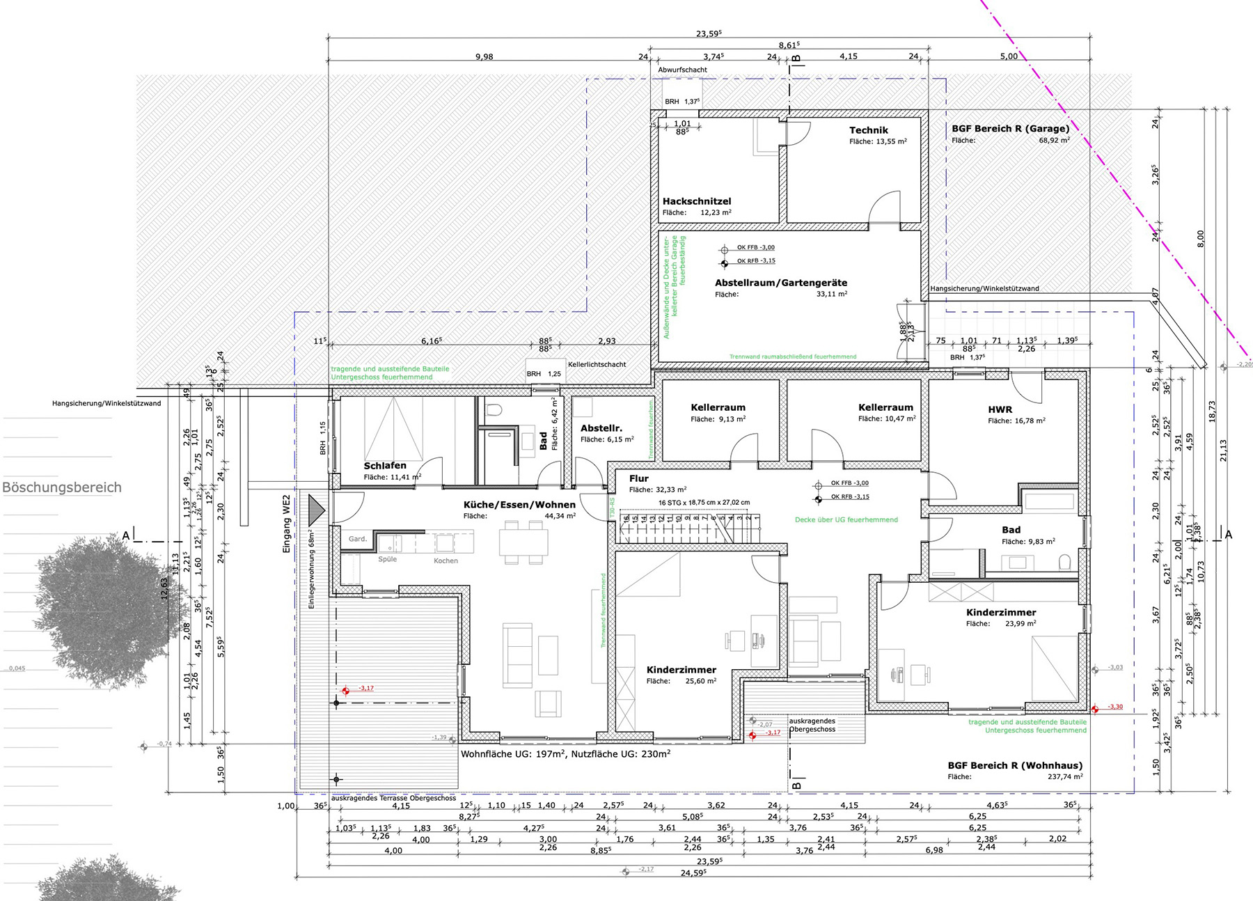
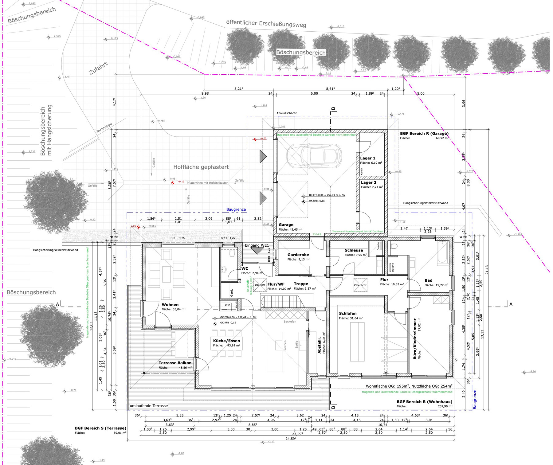
Neubau Wohnhaus mit Doppelgarage.
Das gesamte Untergeschoss im Hang wurde in Stahlbeton geplant. Die Erstellung von Erdgeschoss erfolgte in Holzbau (Holzmassivmauerwerk).
Nutzung: Einfamilienwohnhaus
Wohnfläche: 416m2
Standort: Eltmann, Landkreis Hassberge
