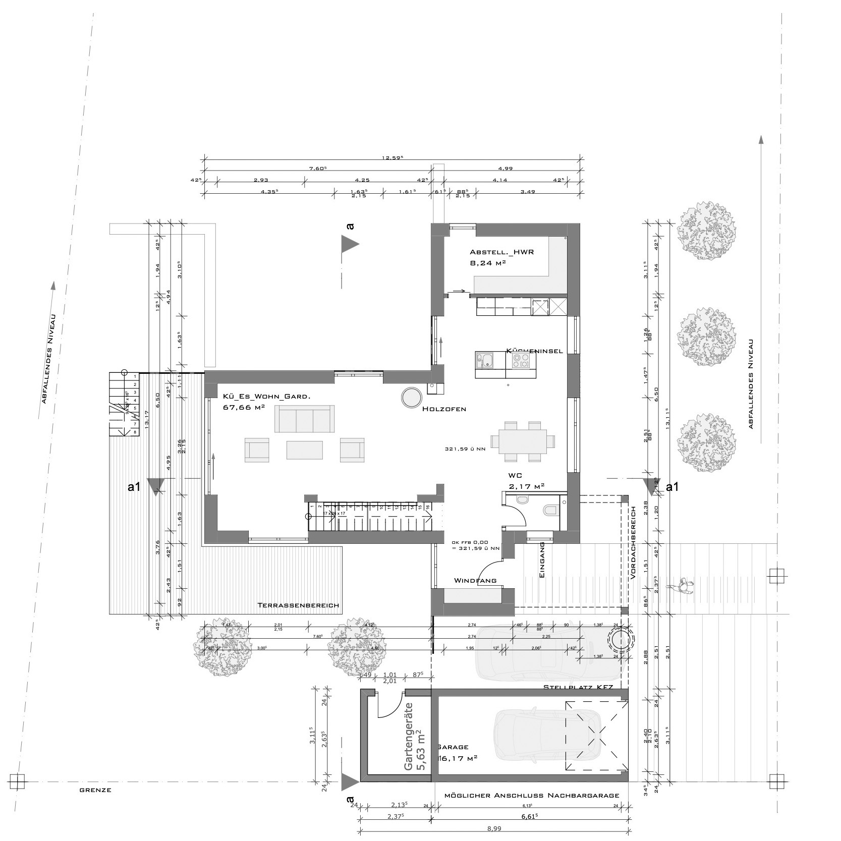
Neubau Wohnhaus mit Garage und Carport.
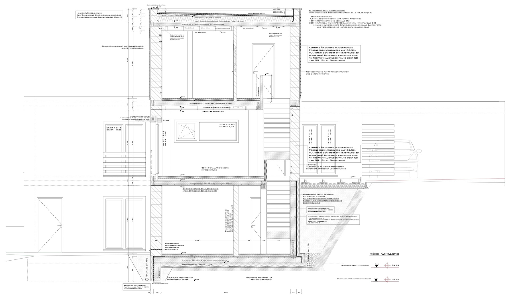
Das gesamte Untergeschoss im Hang wurde in Stahlbeton geplant. Die Erstellung von Erdgeschoss erfolgte in Massivbauweise (Porenbeton).
Nutzung: Einfamilienwohnhaus
Wohnfläche: 167m2
Standort: Eltmann, Landkreis Hassberge
