Free cookie consent management tool by TermsFeed Policy Generator
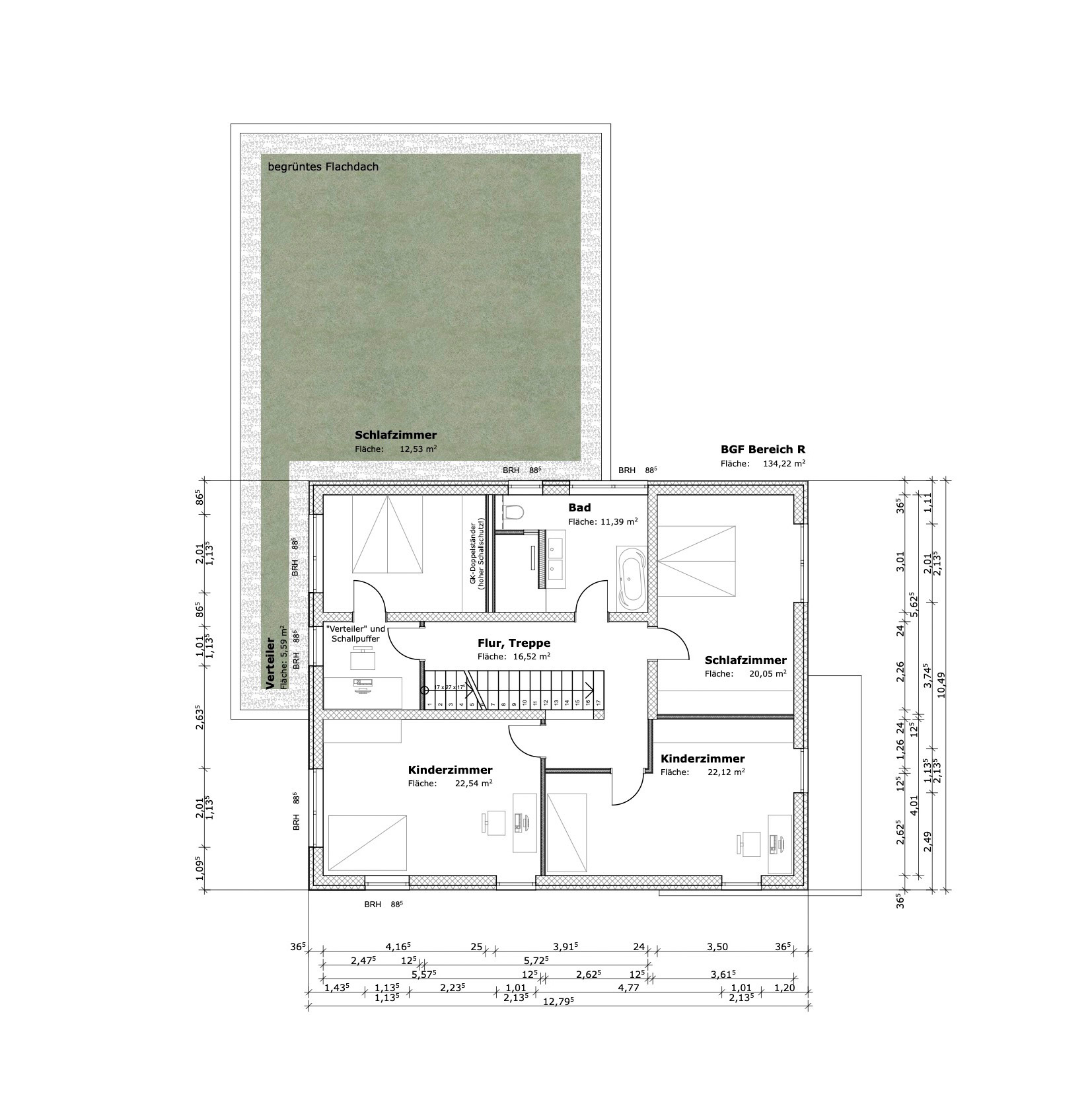
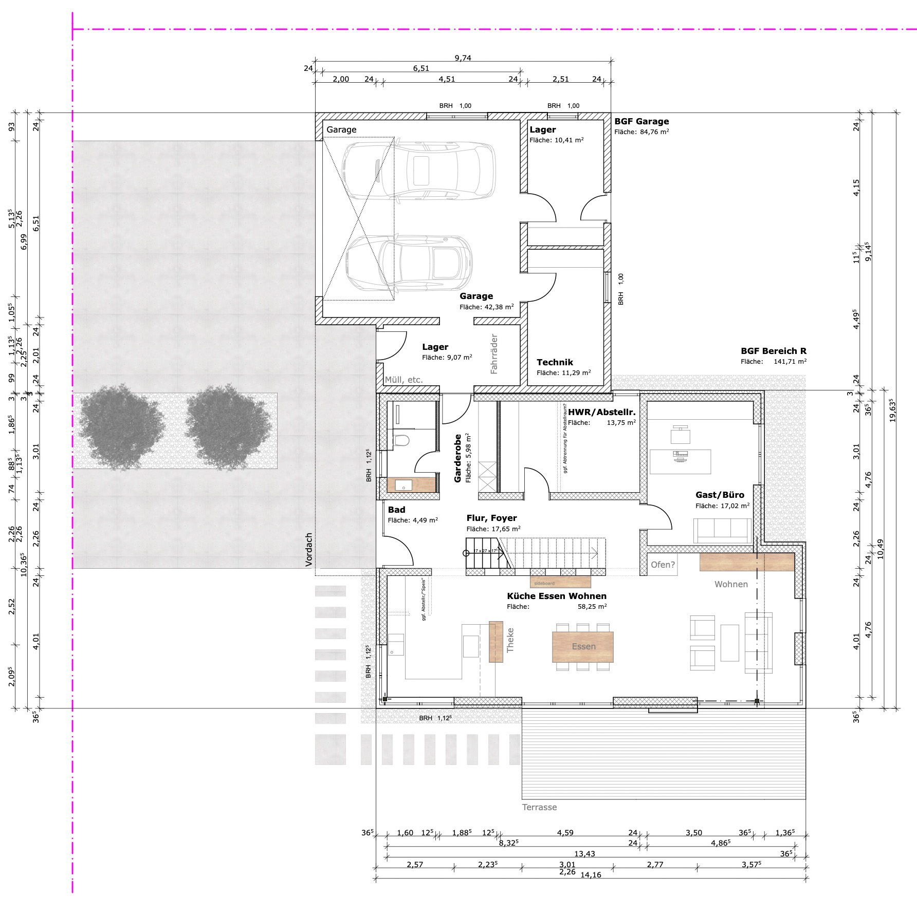
Wohnhaus - Mehlmeisel

Wohnhaus - Mehlmeisel

Neubau Einfamilienwohnhaus mit Doppelgarage in Holzrahmenbauweise.

Nutzung: Einfamilienwohnhaus

Wohnfläche: 228m2

Standort: Mehlmeisel, Landkreis Bayreuth