Free cookie consent management tool by TermsFeed Policy Generator
Wohnhaus - Sand

Wohnhaus - Sand

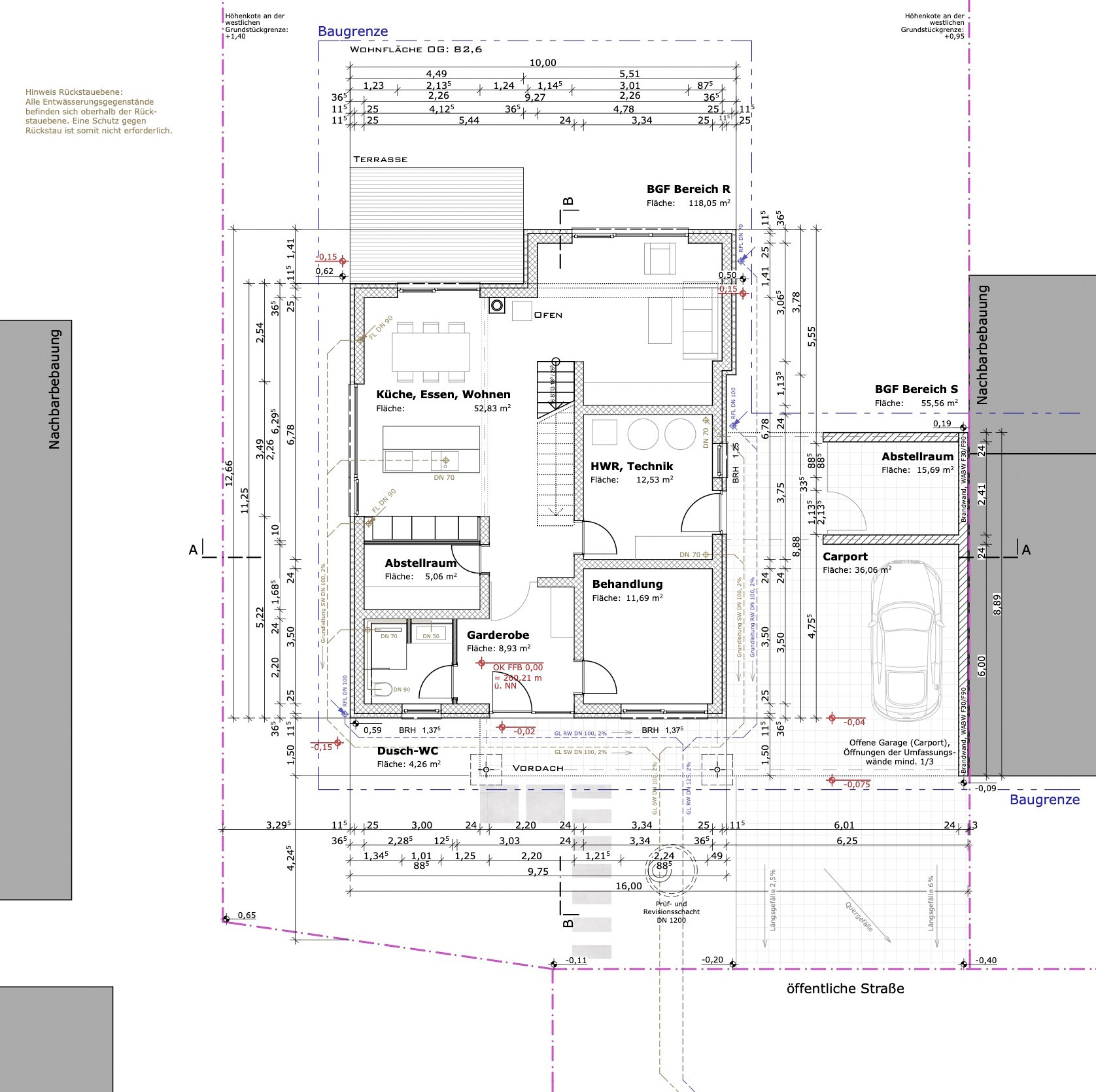
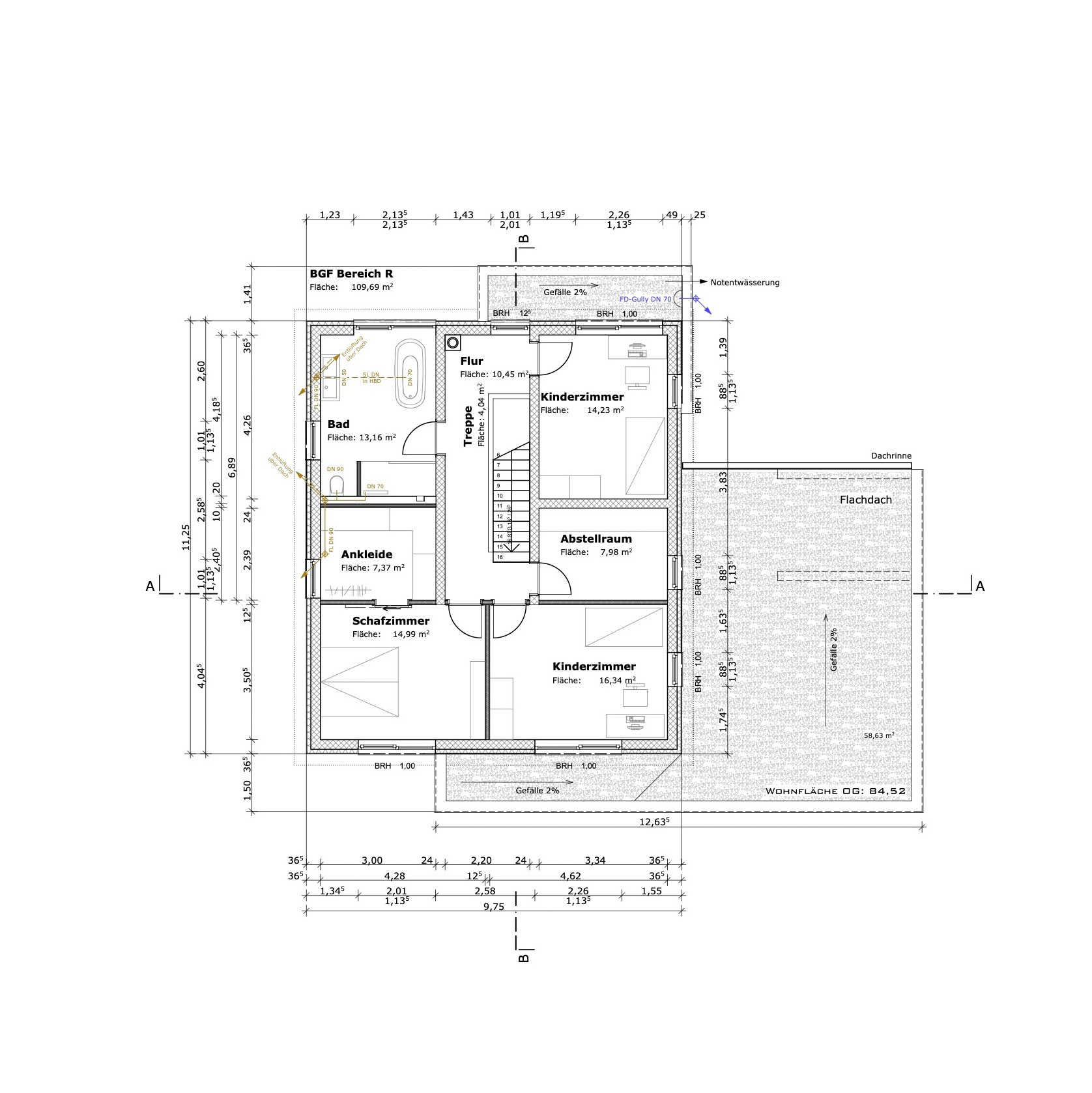
Neubau Einfamilienwohnhaus mit Carport in Holzbauweise (Holzmassivmauerwerk).

Nutzung: Einfamilienwohnhaus

Wohnfläche: 167m2

Standort: Sand, Landkreis Hassberge