Neubau Wohnhaus mit Garagen.
Das gesamte Untergeschoss im Hang wurde in Stahlbeton geplant. Die Erstellung von Erd- und Dachgeschoss erfolgte in Holzbau (Holzmassivmauerwerk).
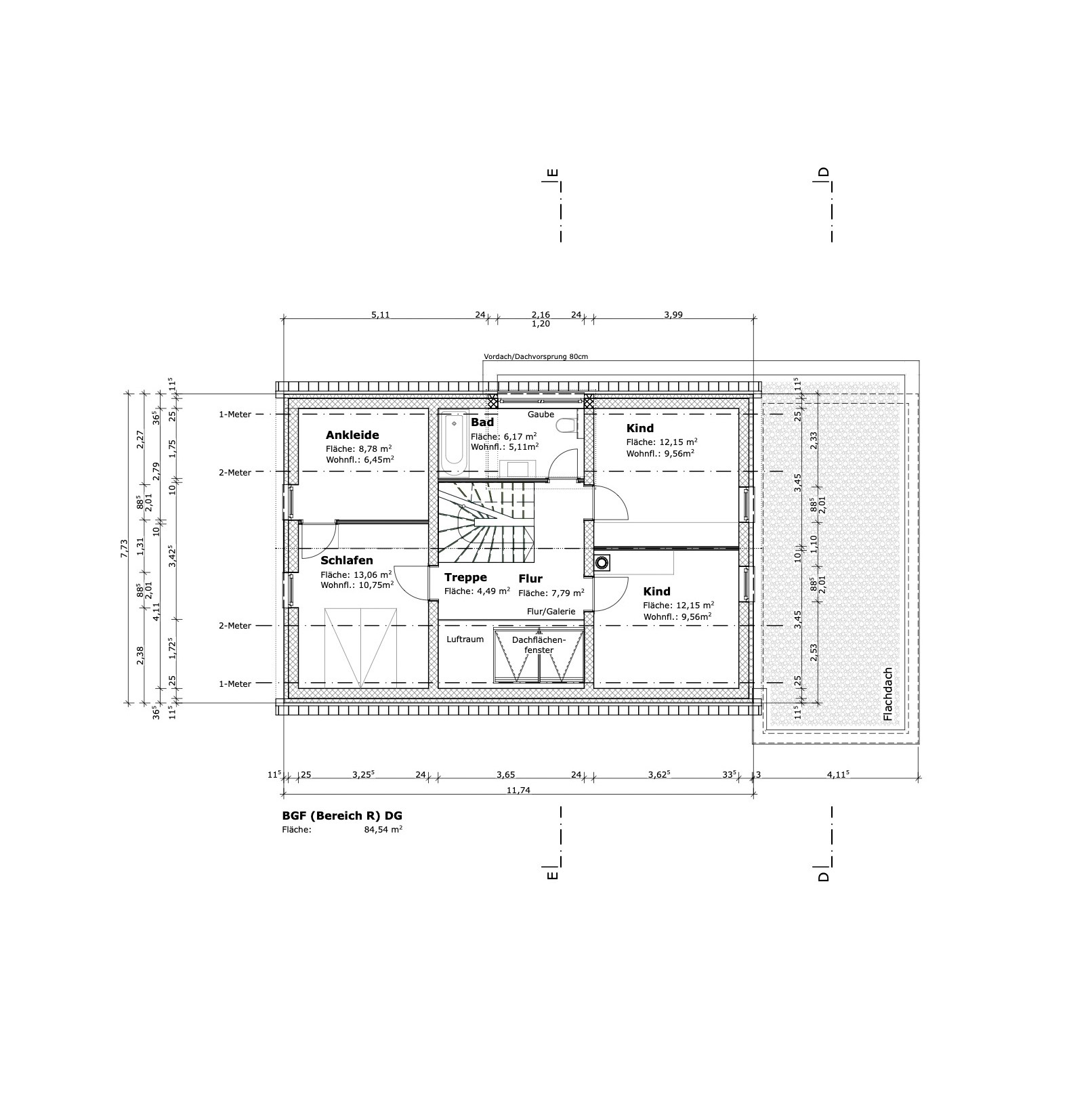
Nutzung: Einfamilienwohnhaus
Wohnfläche: 126m2
Standort: Oberaurach, Landkreis Hassberge
