Free cookie consent management tool by TermsFeed Policy Generator
Wohnhaus - Weipelsdorf

Wohnhaus - Weipelsdorf

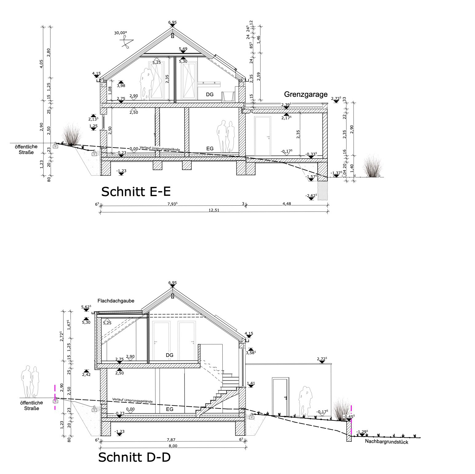
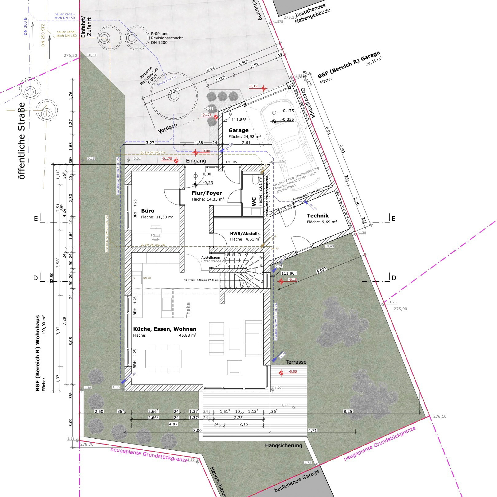
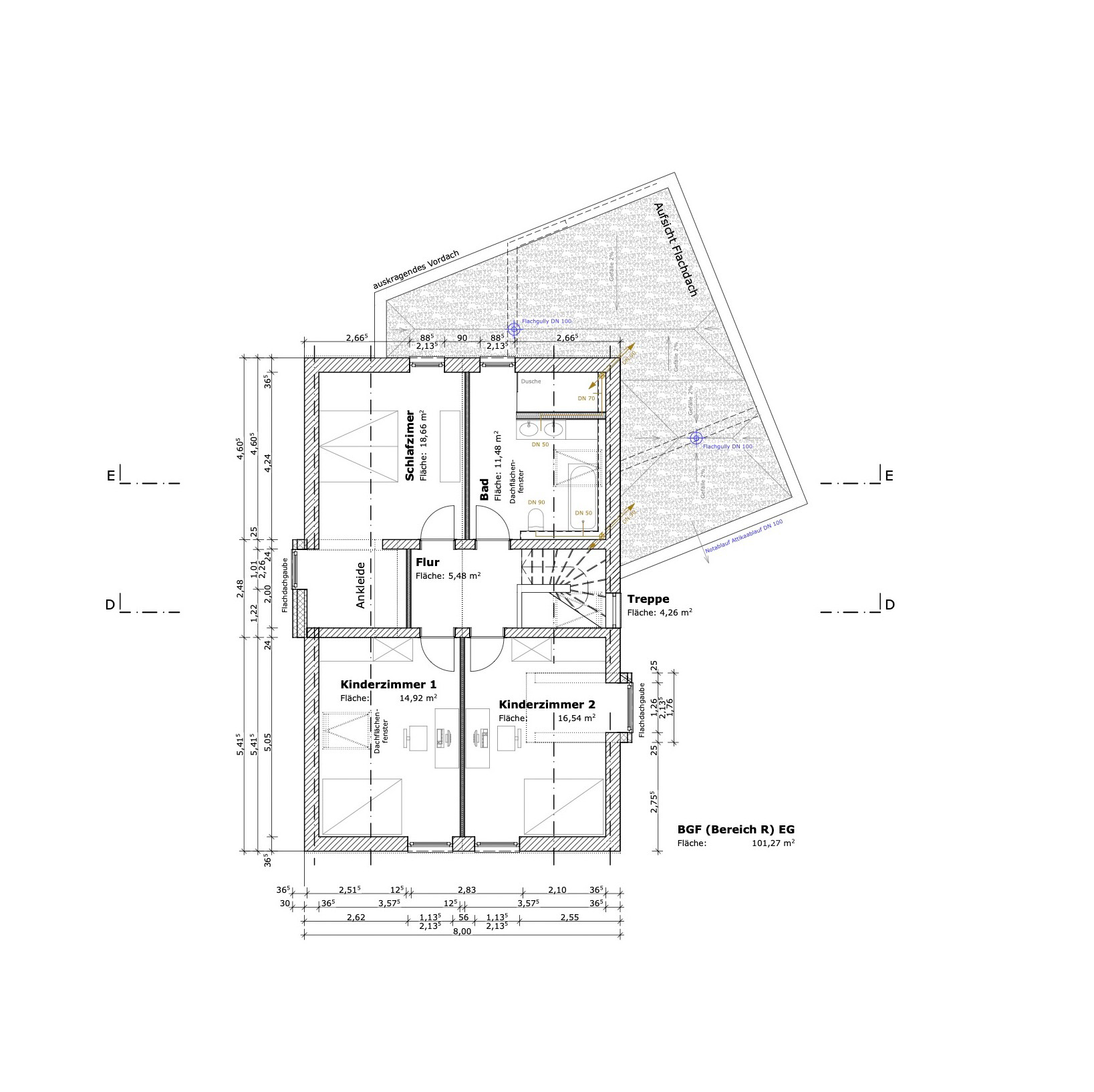
Neubau Einfamilienwohnhaus mit Garage in Massivbauweise. 

Nutzung: Einfamilienwohnhaus

Wohnfläche: 146m2

Standort: Bischberg, Landkreis Bamberg